一、產品概要及特征
旁路綜合作用技術是一項提高配電網供電可靠性的新型作業技術。它包含配網常規作業,帶電作業,旁路作業,移動電源作業等多種作業方式。YCE-LBS-12kV/24KV工程型旁路負荷開關是滿足旁路綜合新型作業技術的核心設備。此開關采用柔性電力電纜,自鎖定快速插拔式電纜連接器,旁路開關,移動箱變車等設備以積木組合方式搭建出不同的配電單元相用戶進行旁路供電。它不但可以使配電作業人員在不間斷供電狀態下完成線路檢修工作,也能對較難處理的電纜線路的故障搶修進行臨時供電,縮小停電范圍,降低停電對用戶的影響,提高了供電可靠性。旁路負荷開關采用絕緣及滅弧性能突出的SF6氣體及先進的主回路結構,開關特征如下:
1.1.本體內部注入的是絕緣及滅弧性能突出的高純度(99.9%)SF6氣體,因此燃弧(Arc)開斷時間短(1/2Cycle),絕緣恢復速度快,而且絕緣性能良好。
1.2.負荷電流分斷時非常短的燃弧時間對開斷部位觸點的消耗很少,因此不需要維護或更換主回路。
1.3.主回路操作機構是簡單倒三角型結構(Toggle),因此不受地震或大風帶來的高頻振動、重力、外部沖擊等影響,性能非常穩定,機械壽命長。
1.4本體采用的是經噴漆處理的SUS304不銹鋼材,因此不會被腐蝕。操作機構及機械傳動部分也都安裝在密封本體內部,因此不會因腐蝕而出現誤動作。
1.5在大氣壓下(0㎏·f/C㎡)也**能夠保證其絕緣性能及開斷性能。即本體內部的SF6氣體即使泄露,而其壓力下降為0時,也能保證全部絕緣性能和開斷性能。
1.6具有帶電顯示、計數顯示;
1.7具備核相功能
二、電氣性能參數
2.1產品采用標準
IEC60502
GB3804
GB/T12706.4
GB/T8905
GB11023
DL/T844
2.2使用環境
①使用溫度:-40~+85℃
②濕度條件:0~***(相對濕度)
③使用高度:海撥1000m以下
2.3額定參數
種 類 | 單 位 | 額 定 | ||||
型 號 | - | |||||
額定電壓 | kV | 12 | 24 | |||
額定電流 | A | 400 / 200 | ||||
額定頻率 | Hz | 50/60 | ||||
絕緣性能 | 額定沖擊耐受電壓 | 相對地 | kV | 75 | 125 | |
同相 端子間 | kV | 95 | 145 | |||
額定工頻耐受電壓 | 相對地 | kV | 42 | 64 | ||
同相 端子間 | kV | 48 | 79 | |||
電 流 分合容量 | 負荷電流 | A | 400 / 200 | |||
激磁電流 | A | 21 | ||||
電纜充電電流 | A | 25 | ||||
線路充電電流 | A | 1.5 | ||||
額定短時耐受電流 | KA/4s | 20 | ||||
額定關合閘電流 | kA | 50 | ||||
氣體壓力 | 額定壓力 | ㎏·f/? | 0.5±0.1 | |||
防爆壓力 | ㎏·f/? | 4~6 | ||||
手動 合/分閘 功率 | ㎏ | 18±2 | ||||
重 量 | 本 體 | ㎏ | 50 | |||
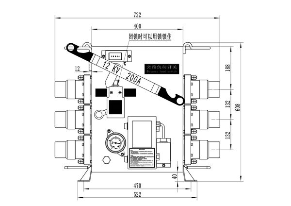
三、旁路負荷開關各部件介紹


項次 | 品 名 | 項次 | 品 名 |
1 | 計 數 器 | 8 | 上提把及吊耳 |
2 | 操作把手、銘牌 | 9 | 右側鎧裝套管插座及防塵蓋 |
3 | 左側鎧裝套管插座及防塵蓋 | 10 | 核相儀/控制器 |
4 | 手動閉鎖裝置 | 11 | 旁路開關固定器 |
5 | SF6 氣 壓 表 | 12 | 接 地 孔 |
6 | SF6 氣體注入閥 | 13 | 高壓防爆裝置 |
7 | 下 腳 架 |
旁路負荷開關外形圖





①套管(Bushing)
套管采用的是絕緣性能突出、而且適用于戶外的環氧樹脂。套管與本體間的縫隙是用密封性能良好的密封圈(O-Ring)來密封的。導電桿材料采用的是T2銅棒。

[進出線套管]
②防爆法蘭(SafetyMembrane)
因開關本體內部出現異常,而本體內部的氣體壓力急劇上升時,為了防止外殼爆裂及內容物的飛散而設置的安全裝置。防爆法蘭耐爆壓力為4~6㎏·f/C㎡。位置在操作者的反方向,從而達到保護操作者的目的。

③氣體注入口(GasFillingPort)
氣體注入口,在正常使用狀態下請不要打開注入口的蓋子,否則本體內部氣體就有可能泄露。即使內部氣體壓力下降,也可通過此注入口再充氣。
④手動合閘/分閘手柄(ManualHandleforClose/Open)
以手動方式操作開關使用此手柄。
⑤手動閉鎖裝置(ManualLockingDevice)
以機械方式鎖定開關本體時使用此裝置,在合閘或分閘狀態下可鎖定操作。
⑥吊鉤(LiftingLugs)
吊運或安裝開關時請使用此吊鉤。吊運或安裝時請不要使用其他部位,不然會損壞產品。
⑦本體支撐架(Leg)
放置到地面時為了不損傷開關本體的下部而設置的支撐用支架。
⑧接地端子(GroundTerminal)
是連接開關本體與接地線的端子。不用其他附件就可以直接向端子連接22~38mm2接地線。
⑨動作計數器(Counter)
表示本體的動作次數.
⑩壓力表(PressureGauge)
用于顯示本體內部氣體壓力正常與否的狀態。壓力表的直徑為76㎜,內部氣體壓力的正常及異常范圍用不同顏色做了區分。
-正常壓力范圍(綠色):0.1~0.5㎏·f/C㎡
-異常壓力范圍(紅色):0.1㎏·f/C㎡以下

四、開關本體的操作
4.1防護等級
開關本體及機構箱的防護等級為IP67。
4.2絕緣和滅弧
絕緣和滅弧介質采用絕緣及滅弧性能良好的高純度的(99.9%以上)SF6氣體,具有*短的滅弧時間(1/2周波)和良好的絕緣恢復特性。
使用壓氣式滅弧原理。負荷電流開斷時,由于SF6氣體的電器特性,電弧在SF6氣體內冷卻時直至相當低的溫度時它仍導電,電弧是在過零時開斷,電流過零前的截流小,由此避免了高的操作過電壓。
4.3本體的操作
①手動合閘/分閘操作
以手動方式操作本體之前請先確認開關的當前合閘/分閘狀態。面對手動操作手柄,在分閘狀態下正面的指示器指向分閘(右側),而紅色合閘環則處在右上側。此時如想合閘,只需向下拉右上側的合閘環即可,此時正面的指示器則指向合閘(左側),而綠色分閘環則處在左上側。
開關本體的下部也有合閘/分閘狀態指示器,此下部合/分閘指示器以機械方式連著開關內部的主軸,因此可以準確地了解到開關當前的狀態。
手動操作開關時所需力量為18±2㎏。手動操作機構為彈簧機構。
②手動閉鎖/解鎖操作
如需在合閘或分閘狀態下以電動和機械方式閉鎖,只需把手動鎖定拉環向下拉即可。如需解鎖,只要把鎖定拉環向上推即可。在手動閉鎖狀態下不能進行分/合閘操作。

4.4核相控制器操作說明
●將開關和控制器通過電纜正確連接,將開關和線路連接。
●打開核相控制器電源開關。按燈測試鍵,全部指示燈應點亮,蜂鳴器鳴響,說明電池電壓符合要求,指示燈和蜂鳴器正常。否則應更換指示燈或蜂鳴器,保持核相器處于正常可使用狀態。
●**行三個紅燈是核相錯誤指示。相位錯誤對應相指示燈點亮,同時蜂鳴器鳴響。
●第二行一個綠燈是核相正確指示。綠燈亮說明相位正確。
●第三行是電源側有電指示,低于額定電壓20%燈不亮。燈亮表示對應的相有電。第四行是負荷側有電指示,低于額定電壓20%燈不亮。燈亮表示對應的相有電。
●當電源側和負荷側6個綠色指示燈都點亮,并且三個核相錯誤紅色指示燈全部不亮,綠色核相正確指示燈點亮,蜂鳴器不響才能合閘。
●本核相器會用9V疊層電池作為電源。電池電壓低于7V時,右下角電池低紅色指示燈會點亮,同時蜂鳴器鳴響,提示更換電池。更換電池后才能正常核相。
●任意一個核相錯誤指示燈亮都是核相錯誤,都不允許合閘。只有6個有電指示燈和核相正確指示燈點亮,相位錯誤指示燈都不亮才允許合閘。簡單說就是紅燈不亮,7個綠燈亮允許合閘。
五、核相器面板

六、開關本體的安裝及保管
6.1產品保管方法
如果不急于安裝產品,而需要保管一段時間,請參考如下幾點:
-*好不要解除包裝,而保持出廠時的原狀態。
-盡量避免環境溫度高或光線直射的場所。
-盡量避免濕度非常高或地面上積水的場所。
6.2開關本體的安裝
6.2.1將固定器安裝在電線桿上;

6.2.2將旁路開關掛在固定器上;


6..2.3旁路開關安裝金具
安裝固定器
七、出現問題時的解決方法
7.1開關本體出現問題時
安裝或使用過程中開關本體上出現問題時,請按如下方法檢查并解決
序號項目原因分析方法分析結果解決方法
1氣體壓力下降到正常壓力范圍以下(*).經再充氣后,在一段時間內維持正常壓力氣體自然泄露重新充氣再充氣后,壓力重新下降開關本體有問題在現場無法解決問題,撤出開關內部壓力增大,導致防爆法蘭爆裂(**)在現場無法解決問題,撤出開關
2無法用手動合閘/分閘操作手柄操作手動閉鎖裝置為鎖定狀態手動鎖定解除手動閉鎖裝置手動閉鎖裝置不在鎖定狀態位置操作力量不足加大力量,重新操作操作機構有問題現場無法解決問題
序號 | 項目 | 原因分析方法 | 分析結果 | 解決方法 |
1 | 氣體壓力下降到正常壓力范圍以下(*). | 經 再充氣后,在一段時間內維持正常壓力 | 氣體自然泄露 | 重新充氣 |
再充氣后,壓力重新下降 | 開關本體有問題 | 在現場無法解決問題,撤出開關 | ||
內部壓力增大,導致防爆法蘭爆裂(**) | 在現場無法解決問題,撤出開關 | |||
2 | 無法用手動合閘/分閘操作手柄操作 | 手動閉鎖裝置為鎖定狀態 | 手動鎖定 | 解除手動閉鎖裝置 |
手動閉鎖裝置不在鎖定狀態位置 | 操作力量不足 | 加大力量,重新操作 | ||
操作機構有問題 | 現場無法解決問題 |
(*)氣體壓力隨環境溫度的變化而變化,因此請參考『SF6氣體壓力–溫度特性曲線』。
(**)防爆法蘭爆裂時請參考『防爆法蘭爆裂時的措施』。
7.2防爆法蘭爆裂時的措施
①防爆法蘭的爆裂說明開關內部的裝置已經受損,因此檢查或撤出時一定要格外小心。
②防爆法蘭爆裂的開關,無法維持正常絕緣及分合性能,因此請及時撤出并更換好的產品。
③這種開關(防爆法蘭已爆裂的)在內部SF6絕緣氣體燃弧(Arc)時分解出大量有毒氣體,因此在撤出時一定要小心。
④防爆法蘭爆裂時從本體內部流露出來的有毒氣體將會污染開關表面,因此相關人員檢查或撤出時一定要穿上保護手套和工作服,使污染物無法接觸皮膚。


7.3發生現場無法解決的問題時
按上述方法無法解決問題或在現場無法解決問題時請與裕誠電氣公司聯系。